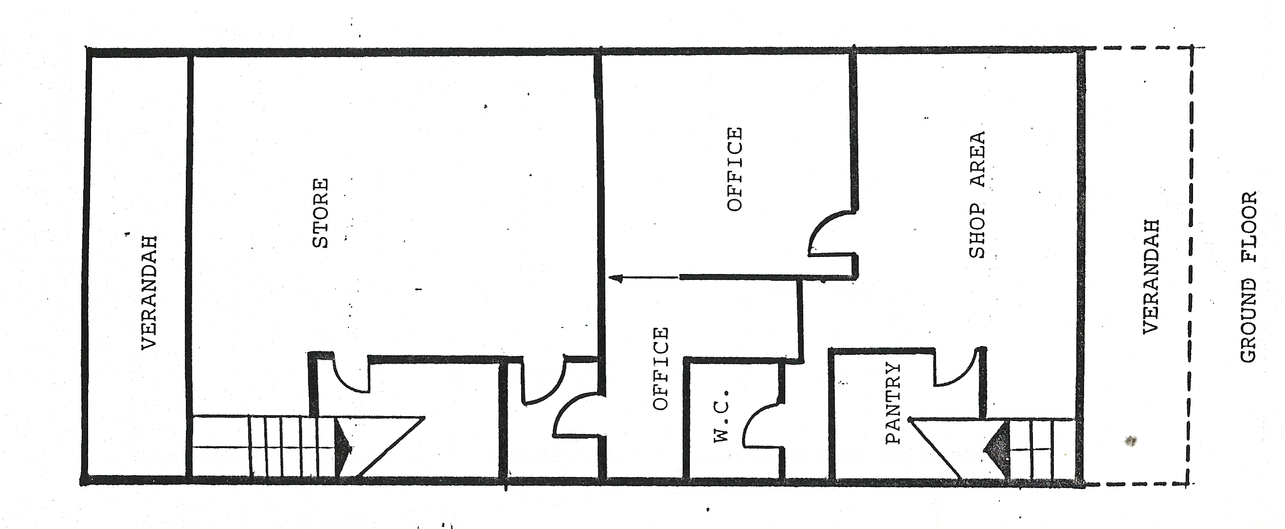
Ground Floor Layout
Print this image